Помещения 750 м²
800 000 ₽/мес.
1 067 ₽ за м²
7 комнаты | 3 этаж
МКАД, 53-й километр, 6
Карта
Панорама
Аренда Помещений 750м² на ул. МКАД, 53-й километр 6
№ 420
Площадь:
750 м²
800 000 ₽
1 066 ₽ за м²
в месяц
Дмитрий
+7 (905) 665-54-84
Написать сообщение
Предложить свою цену
Адрес
Москва, Odincovo р-н, МКАД, 53-й километр, 6
Этаж
3
Комнаты
7
Охрана
Парковка: 4000 многоуровневая, 5000 на улицу
Кондиционер
Часы работы 24-7
Высота потолков: 3
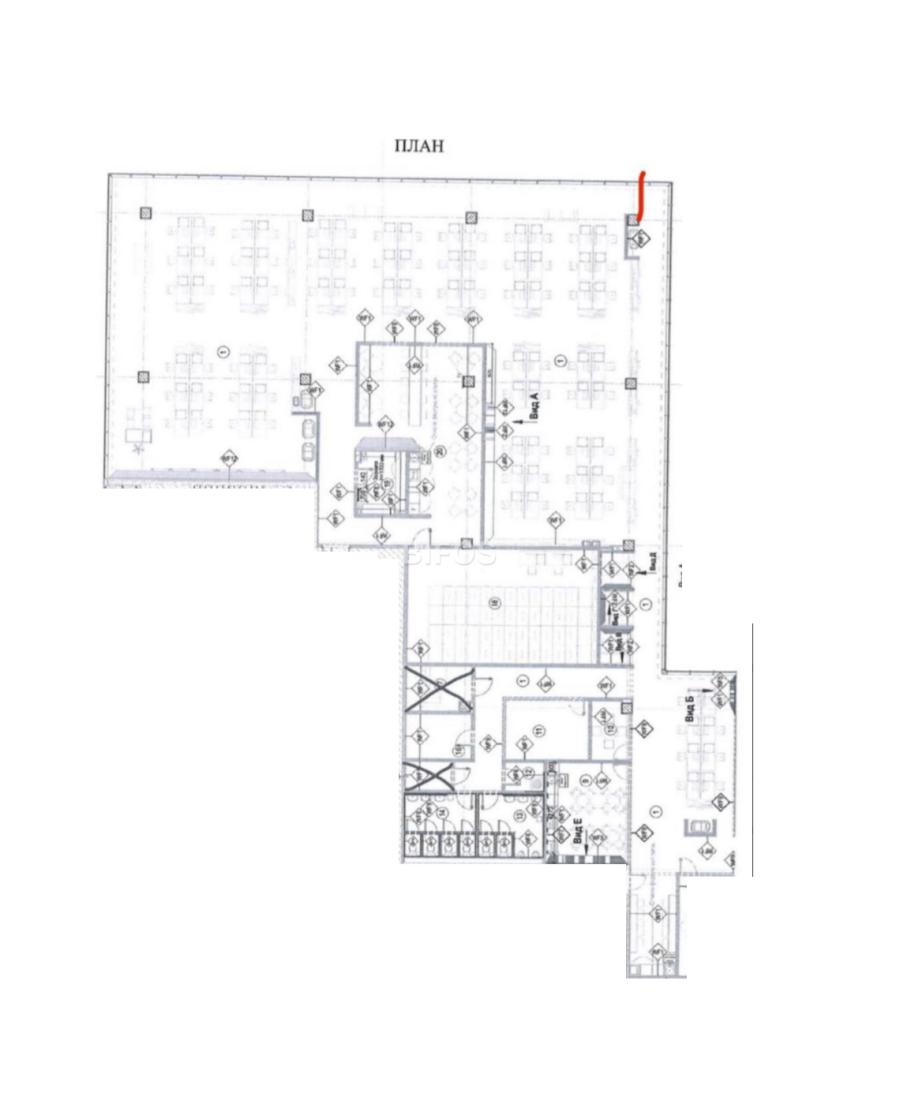
Аренда помещения 750м2 на ул. Можайское шоссе вл165, БЦ Премиум Вест.
3-й этаж, смешанная планировка: большой зал, кухня, архивные, сан-узлы, отдельный комнаты.
Подойдёт под швейный цех. Разводка электричества.
Пассажирский лифт, зона погрузки со двора.
Приточно-вытяжная вентиляция, сис-ма кондиционирования, доступ 24-7, охрана, кафе, столовая.
Парковка 4000р (многоуровневая), 5000р (перед бц), 3 часа гостевая.
Рядом МКАД, Можайское шоссе.
Есть шаттл бас от м. Молодежная, рядом МЦД Немчиновка
Площадь: 750 кв.м., 800 000 рублей, УСН, отдельно электричество, уборка. Депозит 1 мес.
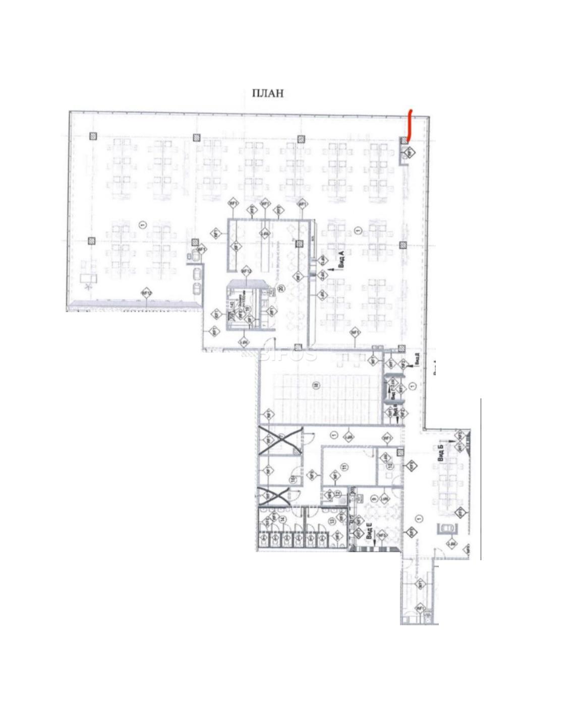
3-й этаж, смешанная планировка: большой зал, кухня, архивные, сан-узлы, отдельный комнаты.
Подойдёт под швейный цех. Разводка электричества.
Пассажирский лифт, зона погрузки со двора.
Приточно-вытяжная вентиляция, сис-ма кондиционирования, доступ 24-7, охрана, кафе, столовая.
Парковка 4000р (многоуровневая), 5000р (перед бц), 3 часа гостевая.
Рядом МКАД, Можайское шоссе.
Есть шаттл бас от м. Молодежная, рядом МЦД Немчиновка
Площадь: 750 кв.м., 800 000 рублей, УСН, отдельно электричество, уборка. Депозит 1 мес.
Помещения в этом здании
Подписаться на новые объекты в этом здании
Похожие объекты
Помещения
В жилом доме
800 000 ₽/мес.
1 067 ₽ за м²
Площадь
750 м²

Odincovo р-н, МКАД, 53-й километр, 6
Поиск других помещений
64