Склад и производство 236 м²
354 000 ₽/мес.
1 500 ₽ за м²
2 комнаты | 1 этаж
Веткина, 2с16
Карта
Панорама
Аренда Склада 236м² на ул. Веткина 2с16
№ 670
Площадь:
236 м²
354 000 ₽
1 500 ₽ за м²
в месяц
Дмитрий
+7 (905) 665-54-84
Написать сообщение
Предложить свою цену
Адрес
Москва, Марьина Роща р-н, Веткина, 2с16
Этаж
1
Комнаты
2
С учётом НДС
Высота потолков: 5
Теплое помещение
Мощность сети 15 кВт
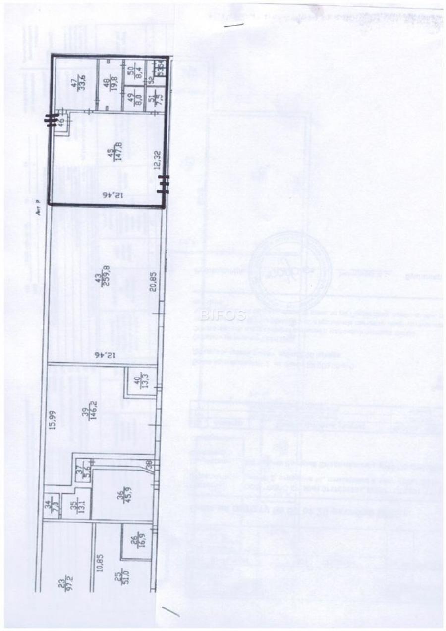
Аренда теплого склада-производства 236 кв.м. ул Веткина 2 стр 16, Марьина Роща.
Ворота на рампе, с другой стороны широкая дверь на нулевой отметке.
Смешанная планировка, основной зал + офисы и свой сан-узел.
Высота потоков 5м, 15 кВт, отопительный котел.
Круглосуточная охрана. Есть платная парковка.
Площадь 236 кв.м. 354 000 рублей в мес., с НДС, отдельно коммунальные.
Ворота на рампе, с другой стороны широкая дверь на нулевой отметке.
Смешанная планировка, основной зал + офисы и свой сан-узел.
Высота потоков 5м, 15 кВт, отопительный котел.
Круглосуточная охрана. Есть платная парковка.
Площадь 236 кв.м. 354 000 рублей в мес., с НДС, отдельно коммунальные.
Помещения в этом здании
Подписаться на новые объекты в этом здании
Похожие объекты
Склад и производство
В жилом доме
354 000 ₽/мес.
1 500 ₽ за м²
Площадь
236 м²

Марьина Роща р-н, Веткина, 2с16
Поиск других помещений
6